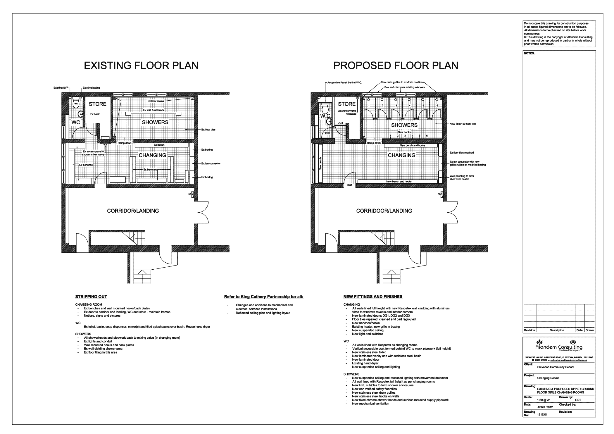
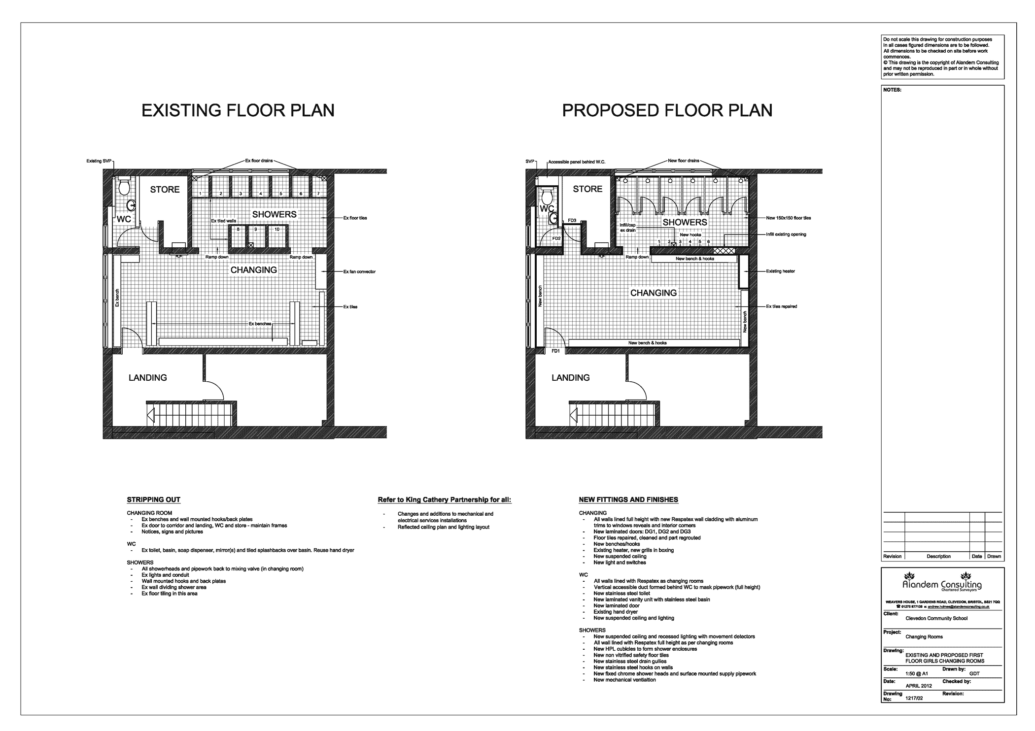
Revamp of existing gym changing rooms at Clevedon Community School by stripping out and replacing fixtures and fittings.