logo
  • Home
  • Portfolio
  • Contact

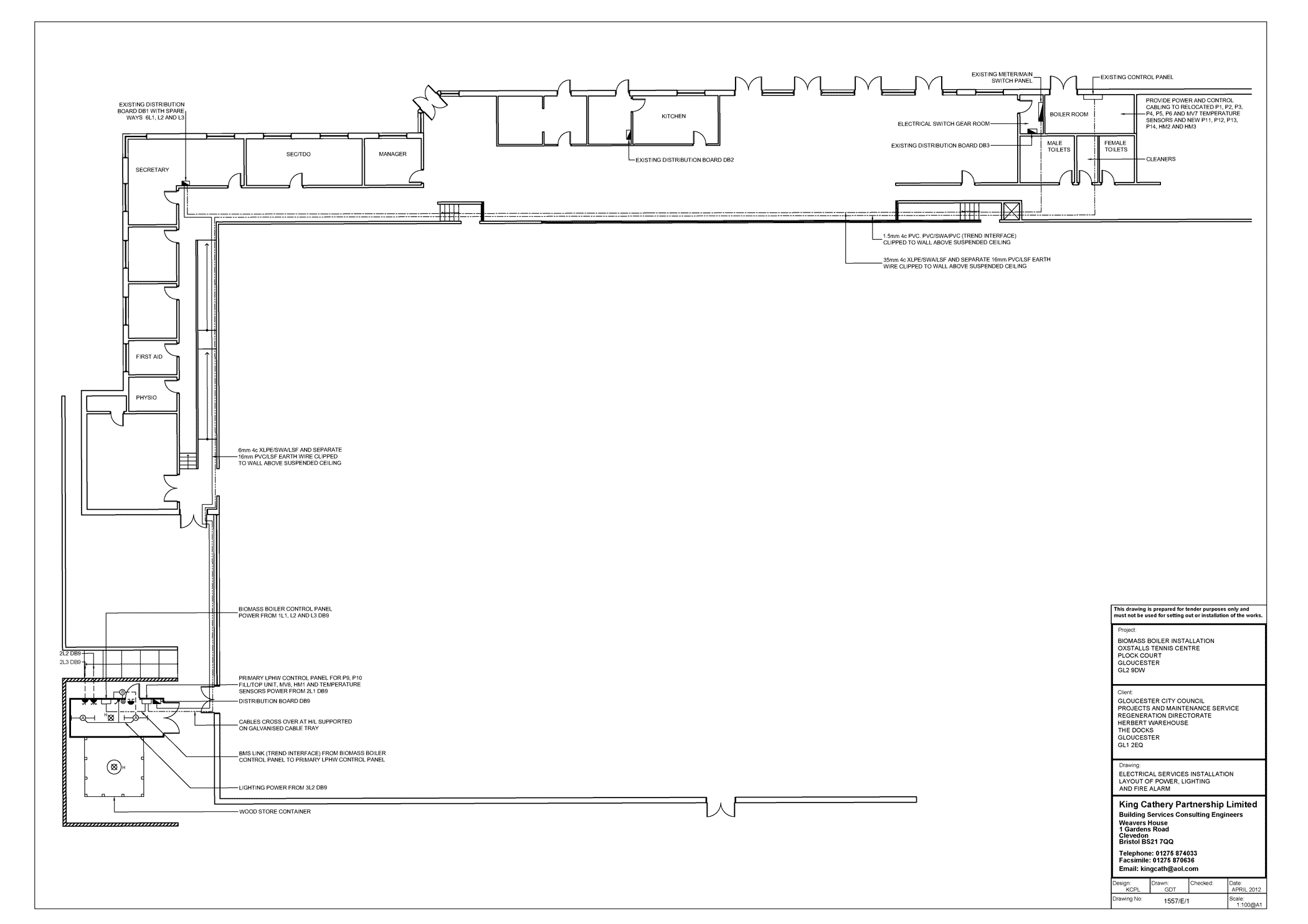
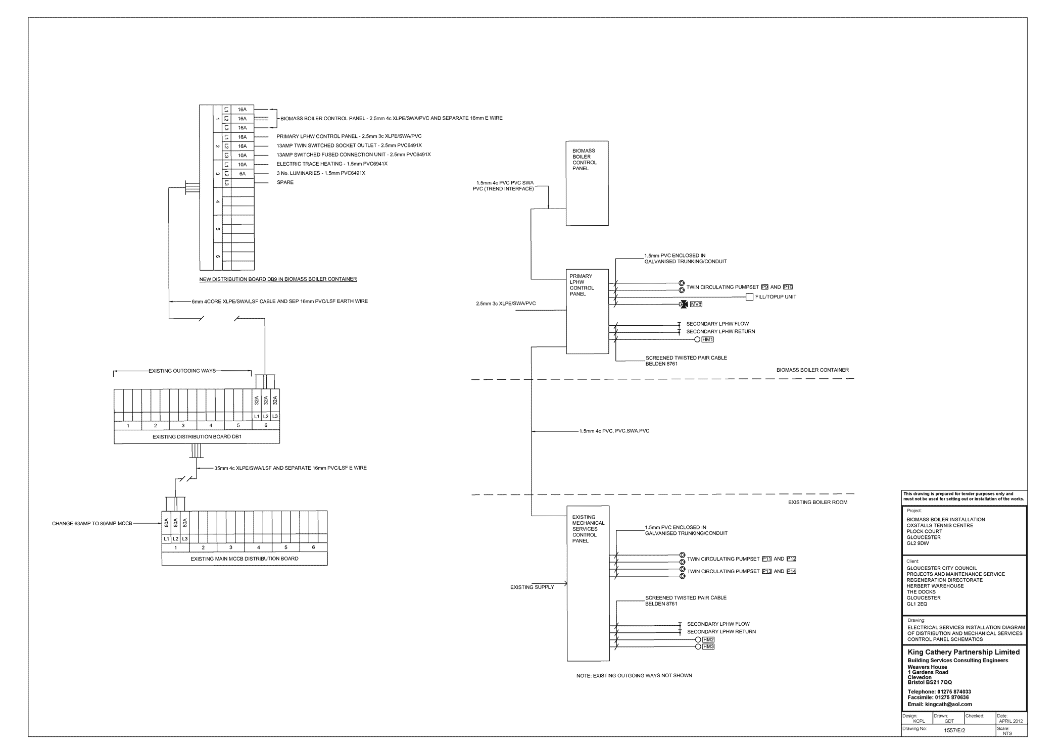
Oxstalls Tennis Centre: Biomass Boiler Installation

Image 1 of 4
Back to Portfolio

Description

Layout of power, lighting and fire alarm facilities for the installation of a new biomass boiler in Oxstalls Tennis Centre in Gloucester.

Client

King Cathery Partnership

- Building services consulting engineers based in Clevedon, Bristol.
© Copyright Graham Tottle 2025. All Rights Reserved.