logo
  • Home
  • Portfolio
  • Contact

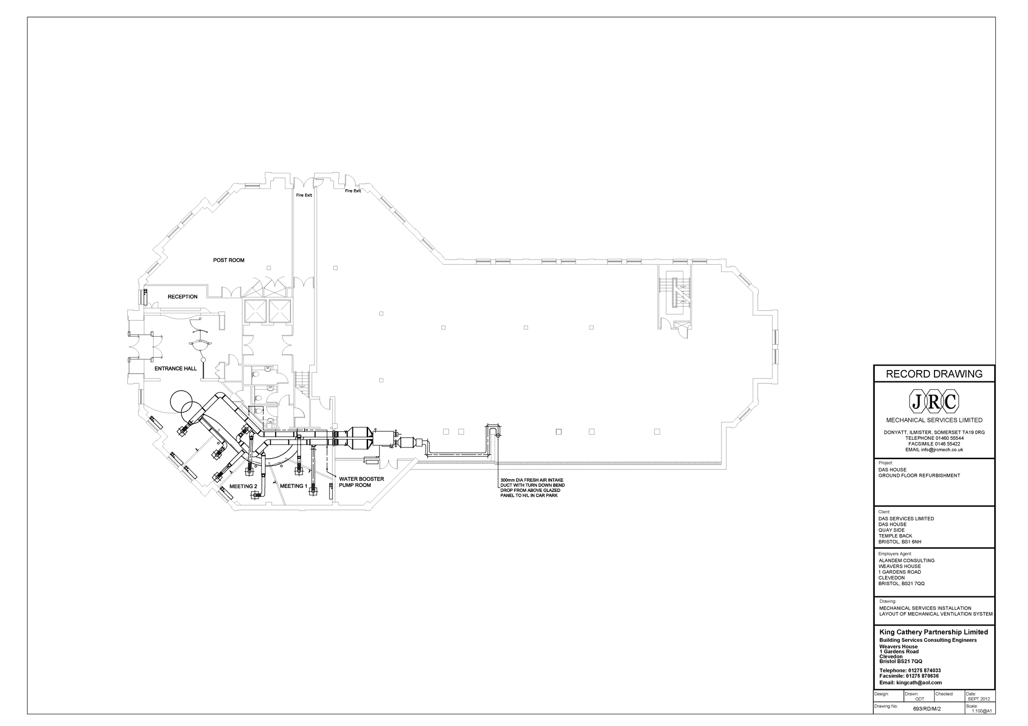
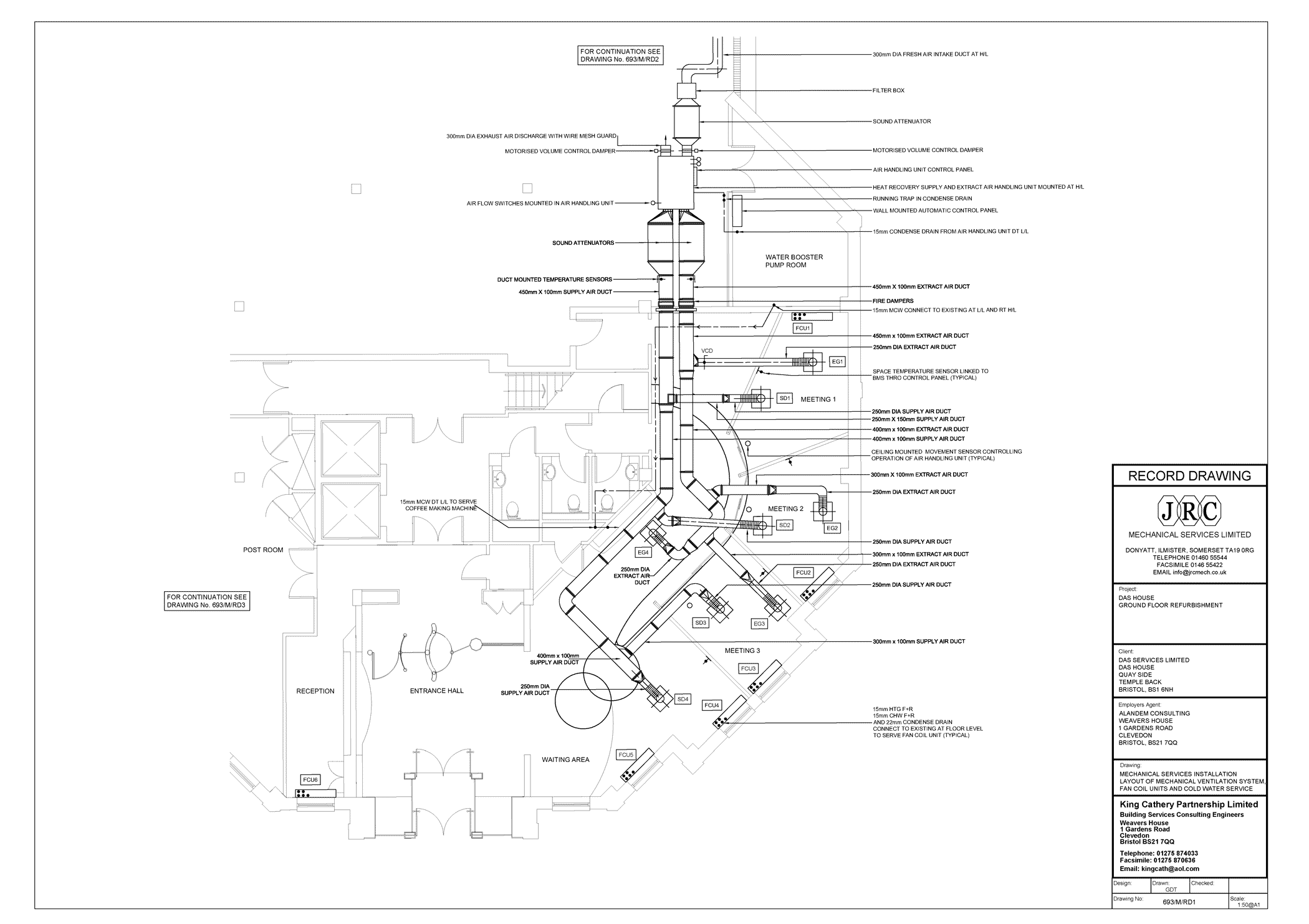
DAS Legal Expenses: Ground Floor Refurbishment

Image 1 of 3
Back to Portfolio

Description

Replacement of mechanical ventilation, fan coil units and cold water services for DAS Legal Expenses in Bristol.

Client

JRC Mechanical Services Ltd

- Mechanical services installation based in Ilminster, Somerset.
© Copyright Graham Tottle 2026. All Rights Reserved.