logo
  • Home
  • Portfolio
  • Contact

Rockwell Green Primary School: Extension & Internal Remodelling

Image 1 of 8
Back to Portfolio

Description

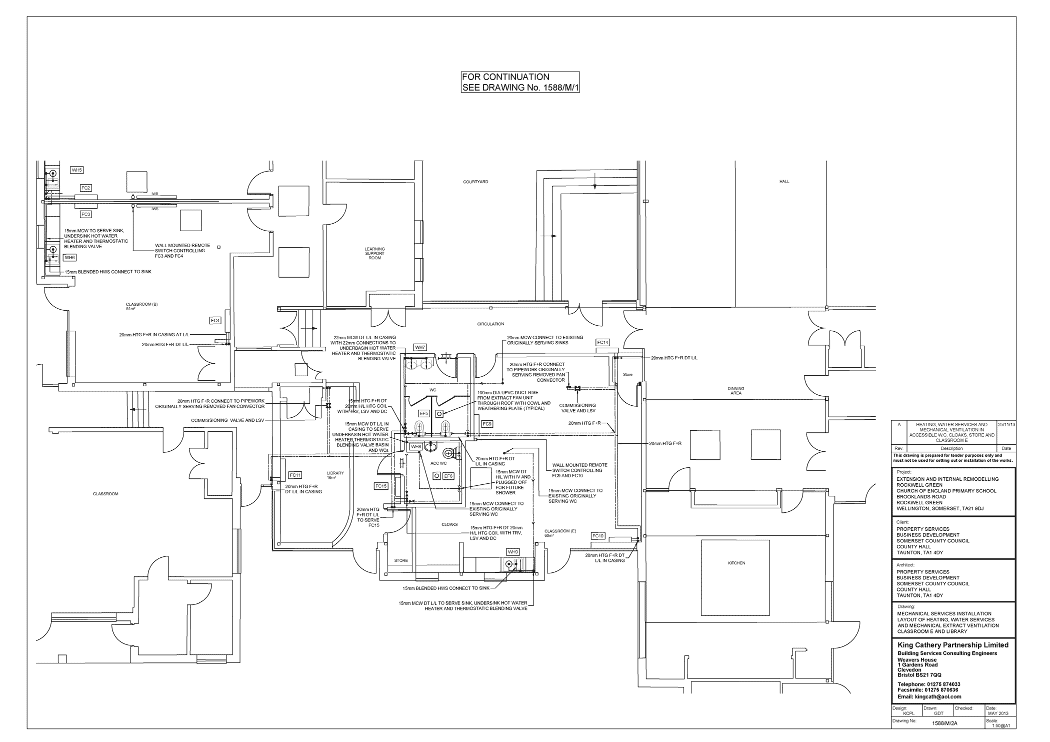
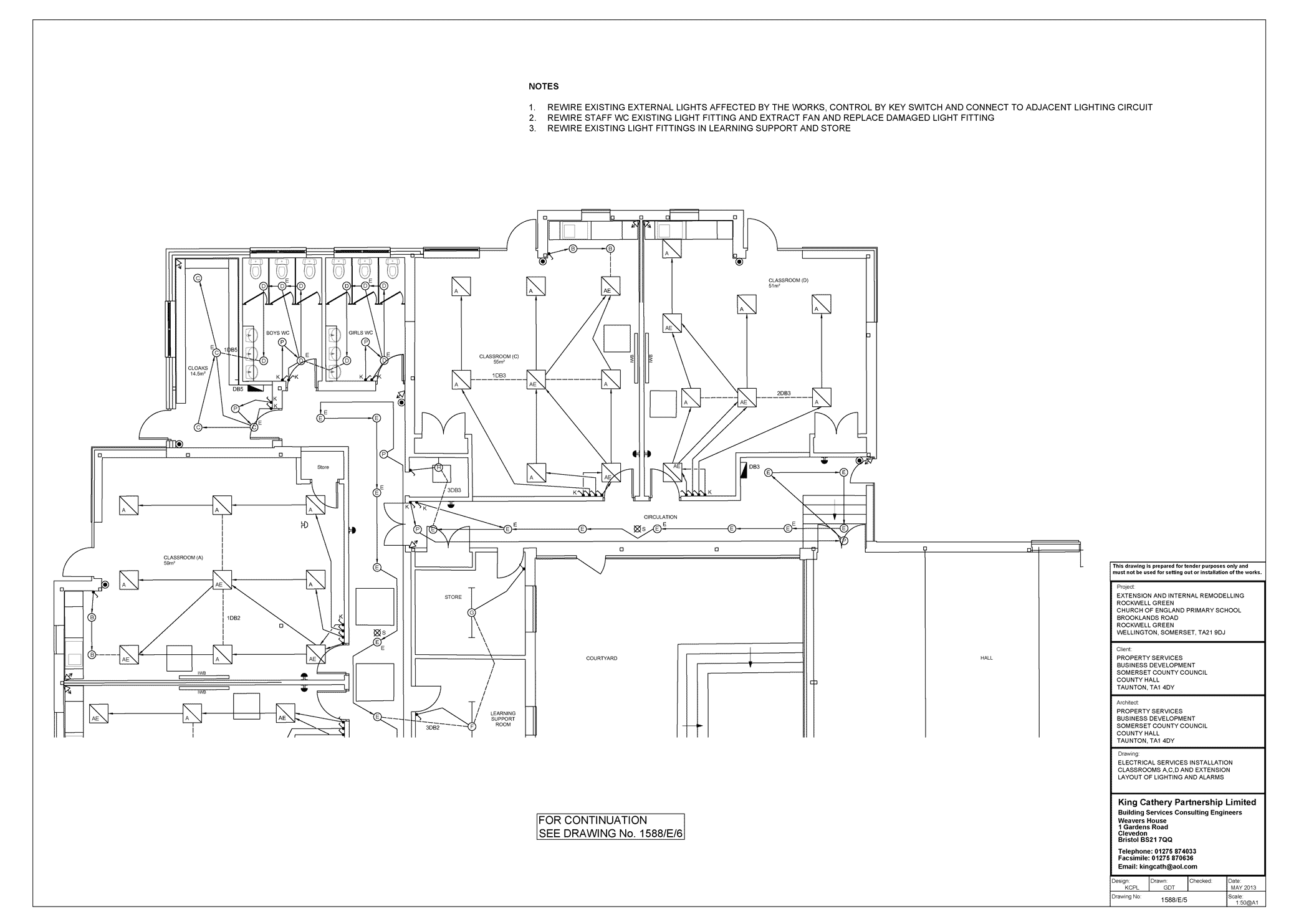
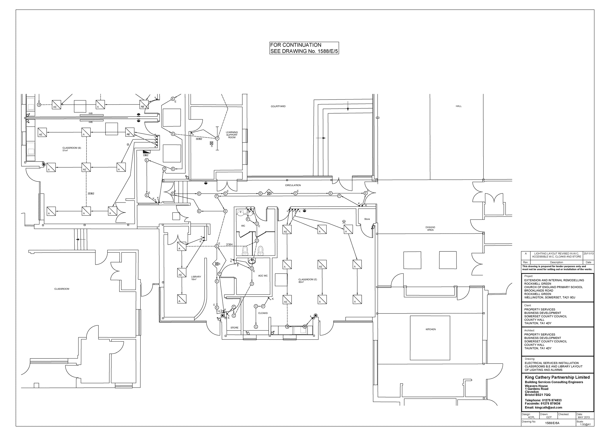
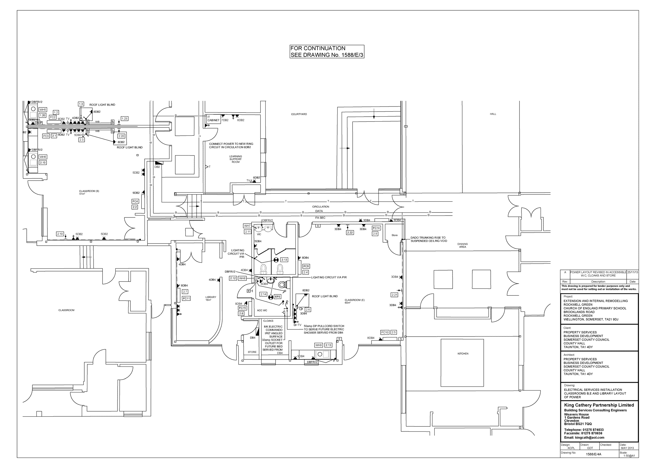
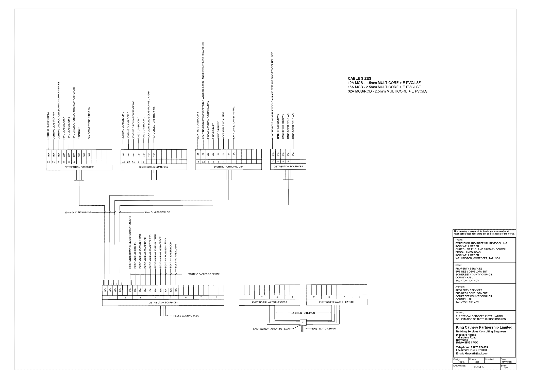
Installation of electrical and mechanical services in new extension and existing classrooms of Rockwell Green Primary School in Wellington, Somerset.

Client

King Cathery Partnership

- Building services consulting engineers based in Clevedon, Bristol.
© Copyright Graham Tottle 2026. All Rights Reserved.