logo
  • Home
  • Portfolio
  • Contact

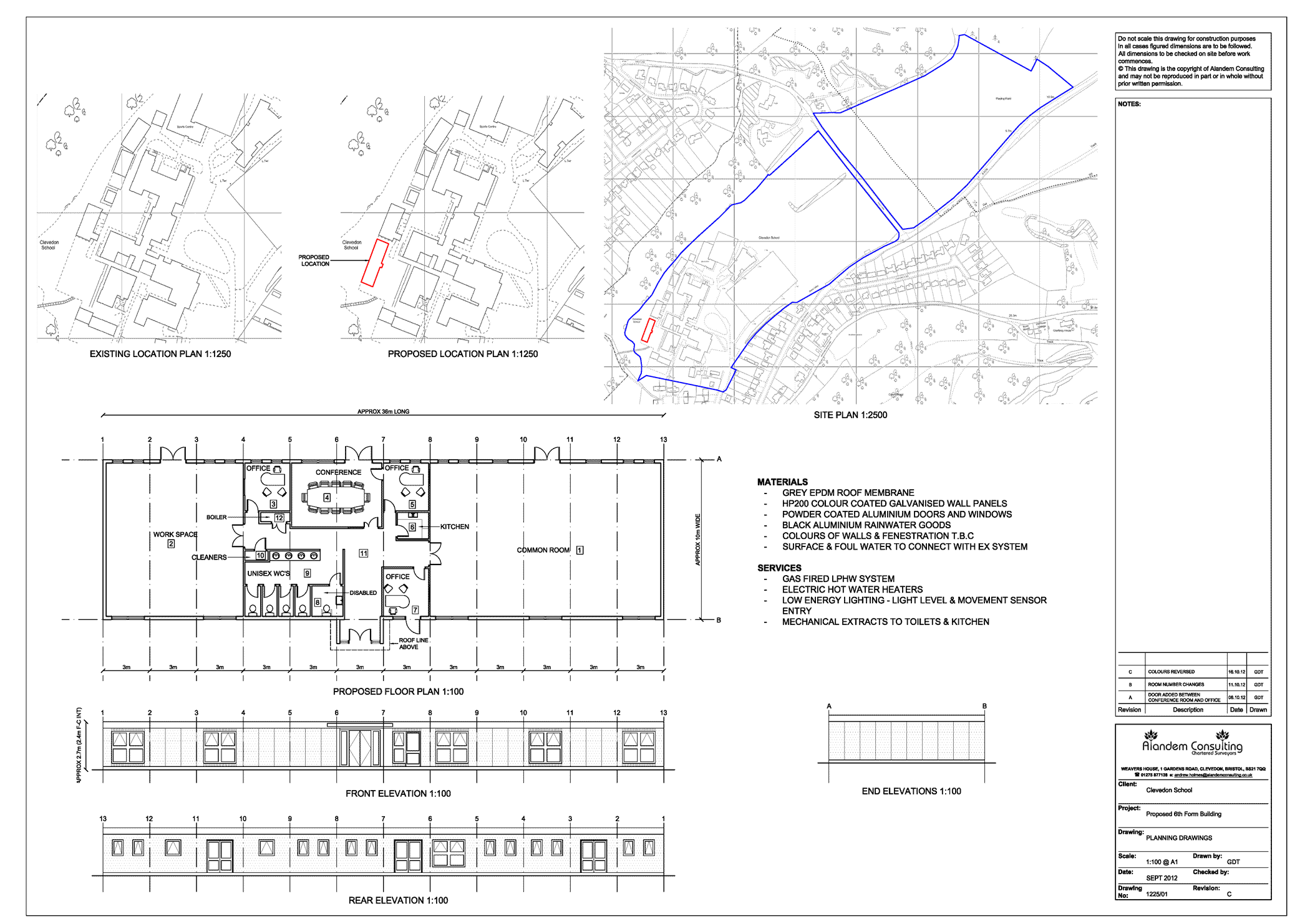
Clevedon School: New 6th Form Building

Image 1 of 3
Back to Portfolio

Description

Planning application drawings for the construction of a new, single storey, prefabricated 6th form building on the existing Clevedon School site.

Client

Alandem Consulting

- Chartered Surveyors based in Clevedon, Bristol.

Planning Application

Click here to view planning application online

© Copyright Graham Tottle 2026. All Rights Reserved.