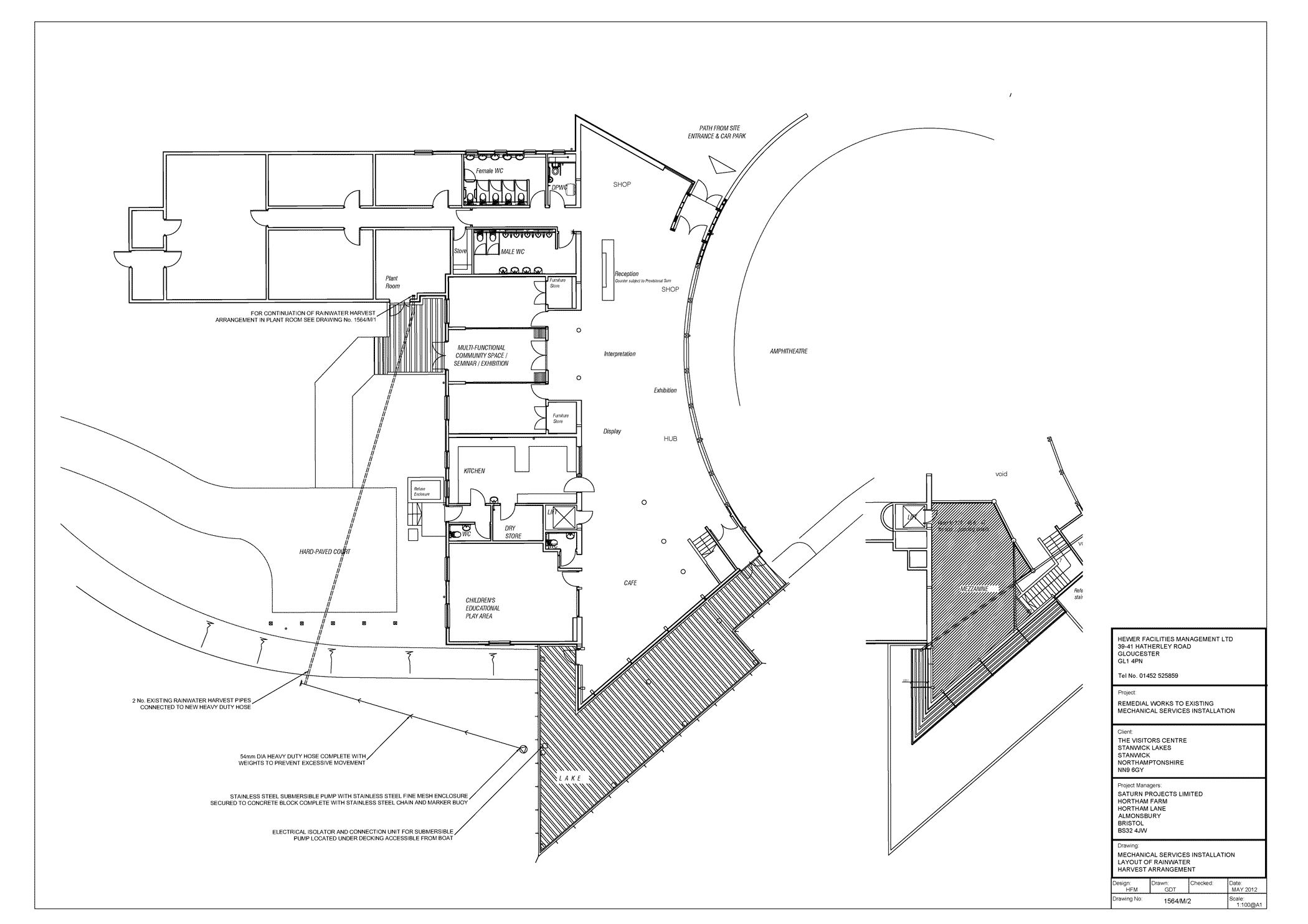
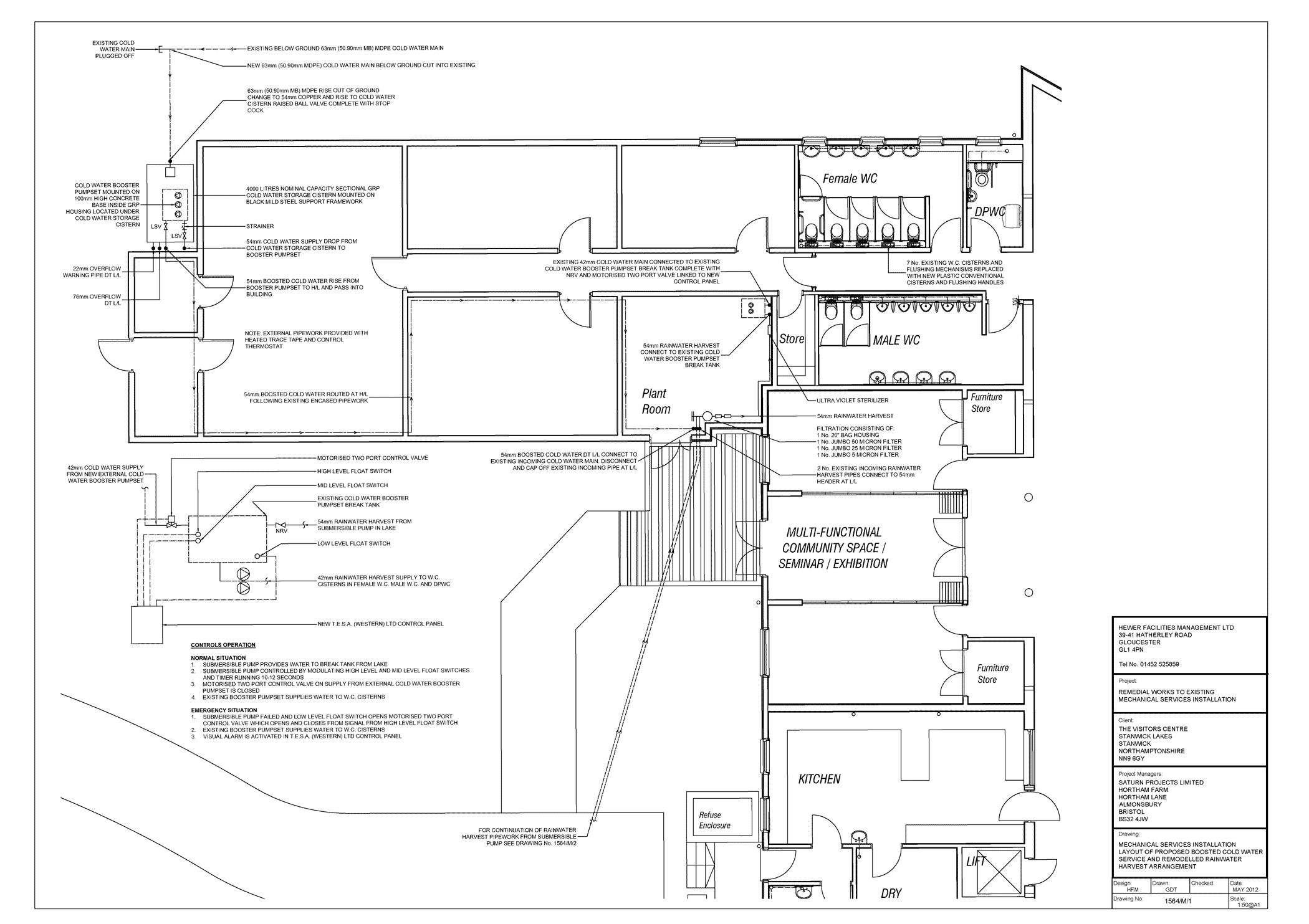
Remedial works to existing mechanical services in Stanwick Lakes Visitor Centre in Stanwick, Northamptonshire